Attività in vendita

Rubano, Piazza Aldo Moro - Sarmeola
€ 6.000
Prezzo aggiornato
2 locali 2 locali
83 Mq 83 Mq
1 bagno 1 bagno

Attività in vendita

Rubano, Piazza Aldo Moro - Sarmeola

Descrizione annuncio

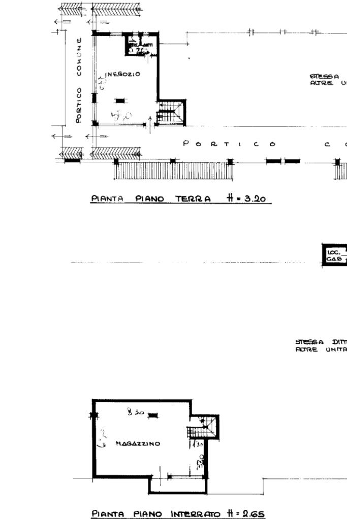
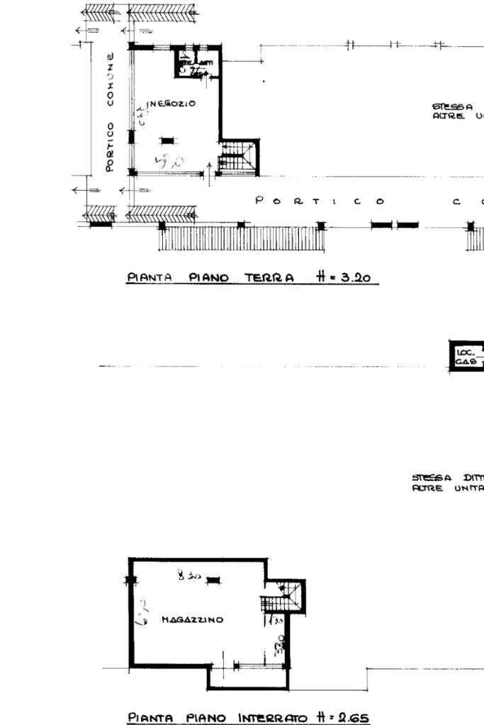
Vendesi attività commerciale di tipo fioreria nella zona centrale di Sarmeola.

L'attività nata nel 2023, si trova all'interno di uno stabile del 1981 e si sviluppa su una superficie di circa 83mq commerciali.

Il piano terra dispone di un funzionale spazio espositivo, molto luminoso grazie alle grandi vetrate, un bancone da lavoro/cassa, cella frigorifera, piccolo ripostiglio e bagno cieco. Al piano interrato invece troviamo un ampio magazzino.

La posizione strategica garantisce buona visibilità e passaggio pedonale, rendendola una soluzione ideale poer chi desidera intraprendere o proseguire un'attività nel settore floreale.

Mostra tutto

Nelle vicinanze

Trasporto pubblico Trasporto pubblico
Sarmeola / Piazza Moro
Sarmeola / Piazza Moro
170 m
Sarmeola / Opera S. Antonio
Sarmeola / Opera S. Antonio
200 m
Ricariche auto elettriche Ricariche auto elettriche
Ristorante Le Calandre | EnelX
600 m
Centro Commerciale Le Brentelle
700 m
ZapGrid - Ali supermercato
2,4 Km
Scuole Scuole
Scuole
350 m
Liceo Scientifico Galileo Galilei
830 m
Scuola primaria G. Pascoli
2,1 Km
Scuola secondaria di Rubano, succursale
2,2 Km
Scuola Primaria “Don Angelo Bertolin”
2,5 Km
Farmacia Farmacia
FarmaNatura
110 m
Farmacia Meltias Sanfiori
700 m
Parafarmacia alle Brentelle
710 m
Farmacia Andreoli
770 m
Farmacia Sarmeola
830 m
Supermercati Supermercati
Tortellini 3 ELLE
160 m
Alimentari da Sergio
720 m
Interspar
720 m
Maxifrutta
900 m
Prix
940 m
Negozi Negozi
Fior di pane
20 m
Pane e sfizi
470 m
Il forno del buon pane
770 m
Panificio Da Luca
1,2 Km
Sapori della Piazzetta
2,1 Km
Bar Bar
Caffetteria René
50 m
Bar
230 m
la Mulata
1,8 Km
Kè Bolà Cuba
1,9 Km
B76 Bar Cafè
1,9 Km
Ristoranti Ristoranti
Le Torri
40 m
Le Calandre
610 m
Hisyou Rubano
840 m
Bar Pizzeria Ristorante Giordano
1,7 Km
Solemaya
2,0 Km
Mostra tutto

Caratteristiche

Rif.:
61191313
Piano:
Su più livelli di 2
Totale piani:
2
Condizionamento:
Autonomo
Ascensore:
No
Riscaldamento:
Autonomo
Mostra tutto
Prezzo Prezzo
€ 6.000
Rata mutuo Rata mutuo
€ 29 / mese
Spese annue Spese annue
€ 700
Proponi il tuo prezzoProponi il tuo prezzo

Altre caratteristiche

Descrizione dei locali
Bagno Cieco

Classe Energetica

C
C
C
C
C
C
C
C
C
Anno di costruzione:
1981
Riscaldamento:
Autonomo
Tipo impianto:
Ad aria
Tipo alimentazione:
Aria

Prezzo ridotto di €1 (40%%)

Ti interessa visionare l'immobile?

Fissa un appuntamento  Fissa un appuntamento

Richiedi informazioni

Clicca su Leggi per aprire l'informativa
* Questi campi sono obbligatori

Calcola il tuo mutuo

Semplice e senza impegno
Anticipo

( % )
Mutuo

( % )

pochi semplici passi

inserisci i tuoi dati
Questionario completato
Grazie per aver richiesto un appuntamento senza impegno con un nostro Consulente del Credito e Assicurativo.

Hai inserito correttamente tutti i dati necessari e a breve riceverai una e-mail con un link da convalidare per inviare i tuoi dati.
Affiliato
Kira Ponte Srl
Via Chiara Varotari, 1 35030 Rubano (PD)

Il nostro staff


  • Giorgia Gottardo
    Collaboratrice

  • Andrea Massaro
    Responsabile

  • Christian Rigato
    Collaboratore

  • Sara Tomat
    Coordinatrice

  • Jacopo Salmaso
    Affiliato
Via Chiara Varotari, 1 35030 Rubano (PD)
Zona: Rubano
Mostra su mappa
Affiliato
Kira Ponte Srl
Via Chiara Varotari, 1 35030 Rubano (PD)

2026 Tecnocasa Franchising S.p.A. - P. IVA 08365160152 - Via Monte Bianco 60/A 20089 Rozzano (MI). Ogni agenzia ha un proprio titolare ed è autonoma. Privacy policy | Policy utilizzo | Cookie policy